Мы используем куки-файлы. Соглашение об использовании

Продам офис в бизнес центре, 57.2

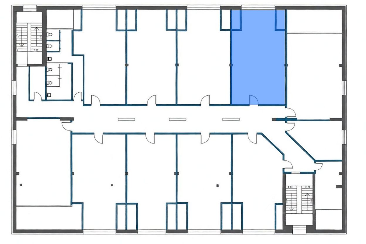
Площадь57,2 м²
Этаж5 из 5
Продам офисное помещение в офисном центре Моршанский Расположение: Адрес: г. Тамбов, ш. Моршанское, д. 14/а Локация: первая линия, центр деловой активности города Парковка: собственная, удобная для посетителей и арендаторов Характеристики помещения: Площадь: 57,2 кв.м Этаж: 5 из 5 Отделка: офисная, помещение готово к въезду Состояние: полностью готово к эксплуатации Преимущества: Центральное расположение в деловом районе города Удобная парковка для сотрудников и клиентов Офисная отделка — можно сразу начать работу Собственник — отсутствие посредников Развитая инфраструктура района Условия продажи: Стоимость за 1 кв.м.: 55 000 рублей за 1 кв.м Стоимость помещения: 3 146 000 рублей Описание: Продам офисное помещение в бизнес-центре ""Моршанский"", расположенном по адресу: г. Тамбов, Моршанское ш., 14а. Общая площадь: 57,2 кв.м. Здание отлично расположено, имеет удобные подъездные пути. В непосредственной близости расположены объекты социальной инфраструктуры, такие как: Стоматологическая клиника; Дом печати; Тамбовский государственный университет; Центр планирования; Тамбовский завод ""Электроприбор""; Городская Стоматологическая клиника; Помещение расположено на 5 этаже, после свежего косметического ремонта, все коммуникации и инженерные сети. Звоните прямо сейчас! Ответим на все вопросы и организуем просмотр в удобное для вас время!
lock

Войдите или зарегистрируйтесь
для просмотра информации

Просматривайте условия сделки и всю информацию об объекте
Сохраняйте фильтры в поиске и не вводите заново
Доступ к избранному с любого устройства
Неограниченное добавление в избранное
Позвоните автору
Вам ответят на все вопросы
Остались вопросы по объявлению?
Позвоните владельцу объявления и уточните необходимую информацию.
  • Инфраструктура
  • Похожие рядом
Помощь надёжных риелторов
Риелтор партнёр Циан поможет купить или продать любую недвижимость
Автор объявления
ID 136787019
  • 6 месяцев на Циане
  • 3 146 000 ₽
    44 180 $
    38 113
    Цена за метр
    55 000 ₽
    Налог
    НДС включен: 567 311 ₽
    Автор объявления
    ID 136787019